Cartoux Damien Négociateur
Télécharger la fiche
Coup de coeur

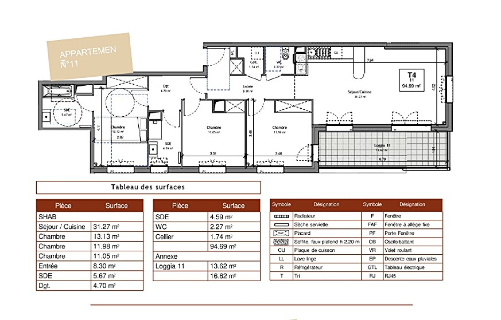
Appartement 4 pièce(s) 3 chambre(s) 94.69 m²

Beaune (21200)
408 229 € Référence 372

A propos de ce bien

Découvrez la résidence le Grand Cru, votre NOUVELLE RÉSIDENCE de standing au cœur de Beaune ! Située au 26 route de Savigny, proche de l'hyper centre de Beaune et à proximité immédiate de nombreux commerces, cette nouvelle adresse vous propose des appartements spacieux duT2 au T4 pièces. Qui dit ville d’exception dit habitat d’exception !c’est le défi que c’est donné la résidence le grand cru pour offrir le meilleur en terme d’emplacement, de confort, d’équipement, de distinction, et de discrétion. Un projet audacieux pour une concrétisation sans commune mesure dans cette ville de prestige de petite taille. En retrait de la route de Savigny, côté faubourg saint Nicolas, la résidence le grand cru est doté d’un grand espace paysagé de plus de 1500 m2.


Un choix de 12 logements s’est opéré, articulés autour de 3 étages. Les deux premiers niveaux sont identiques et offrent 4 T3 spacieux par niveau, de 64 à 79m². Le 3ème étage est agencé autour de 3 Appartements 4 pièces, le premier de plain-pied de 94m², le 2ème en duplex avec 2 loggias et une superficie de 116m² et le dernier, le plus majestueux de 123m² a été dessiné avec des volumes généreux et un cachet exceptionnel apporté par le somptueux plafond cathédrale dans leSéjour et ses 3 loggias. Ces T4 sont l’exemple même de l’esprit de la maison de ville avec des prestations de haut standing. Tous les logements sont pensés pour un espace optimisé, une Luminosité optimale, un cellier - bonus apprécié – une suite parentale pour préserver son intimité et son indépendance, un espace de vie ouvert sur l’extérieur au décor design et épuré.

Livraison 2e trimestre 2027

Les informations sur les risques auxquels ce bien est exposé sont disponibles sur le site Géorisques : georisques.gouv.fr

Dossier complet sur demande


Les informations sur les risques auxquels ce bien est exposé sont disponibles sur le site Géorisques

Caractéristiques de ce bien

  • Surface 94,69 m²
  • carrez 94,69 m²
  • séjour 31 m²
  • 3 chambre(s)
  • 1 salle(s) de bain
  • 1 salle(s) d'eau
  • construit en 2025
  • cuisine américaine (équipée)
  • 1 garage(s)
  • 3ème étage
  • 3 étage(s)
  • terrasse

Diagnostics énergétiques

Consommation énergétique
A B C D E F G
Emission de gaz à effet de serre
A B C D E F G
DPE ANCIENNE VERSION

Informations financières

Prix de vente honoraires TTC inclus 408 229 €

Informations de copropriété

Copropriété Oui
Lot n° 11
Nombre de lots 12
Plan de sauvegarde Non
Statut du syndic Pas de procédure en cours

Autour du bien

  • Commerces et santé
  • Loisirs
  • Ecoles
  • Transports
  • Pratique

Calcul des mensualités

* Champs obligatoires